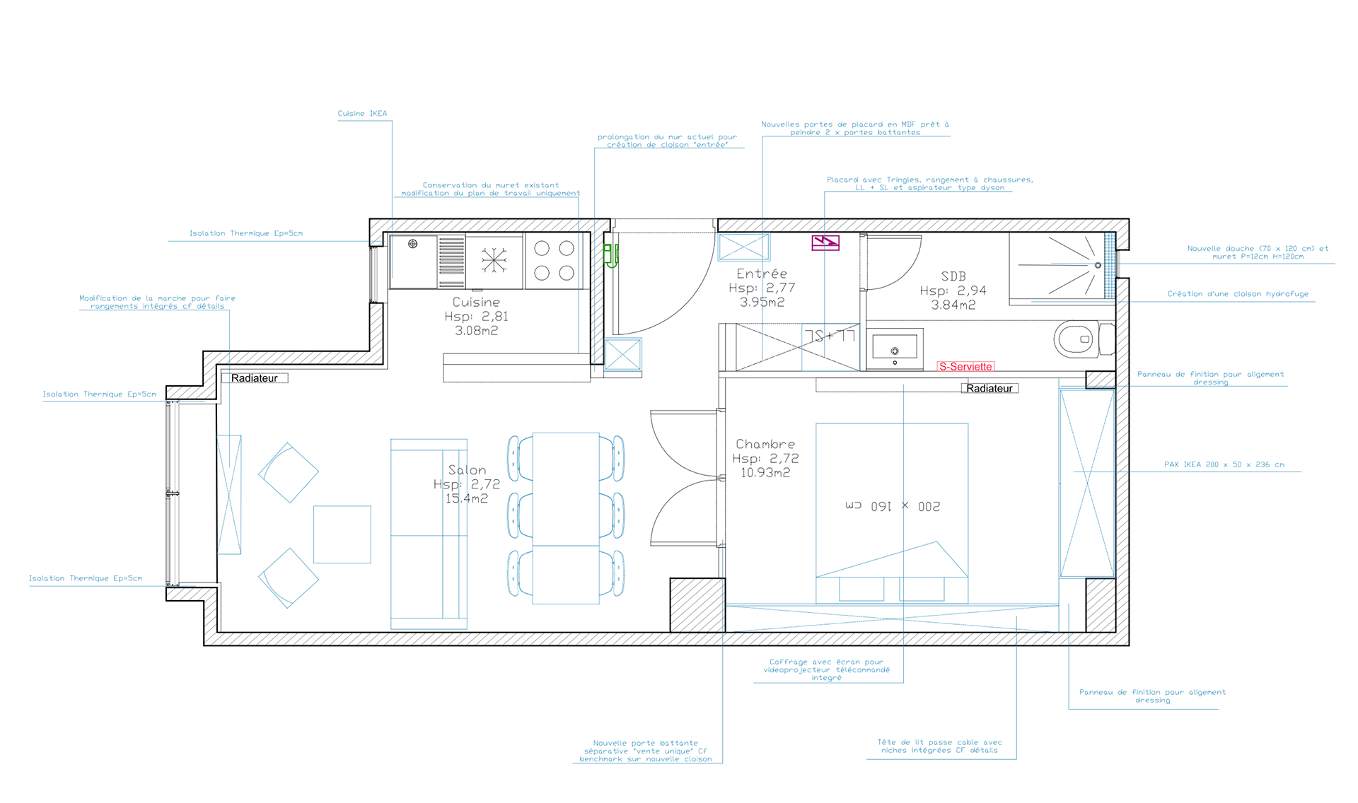
Rénovation totale d'un appartement dans le 19ème arrondissement de Paris. L'aménagement et la modification des espaces permettent de créer une entrée et un salon qui s'ouvre sur l'extérieur avec sa nouvelle marche qui sert de banquette. 
© Visuels 3D . Chantier en cours.. Resinstudio

You may also like

Back to Top