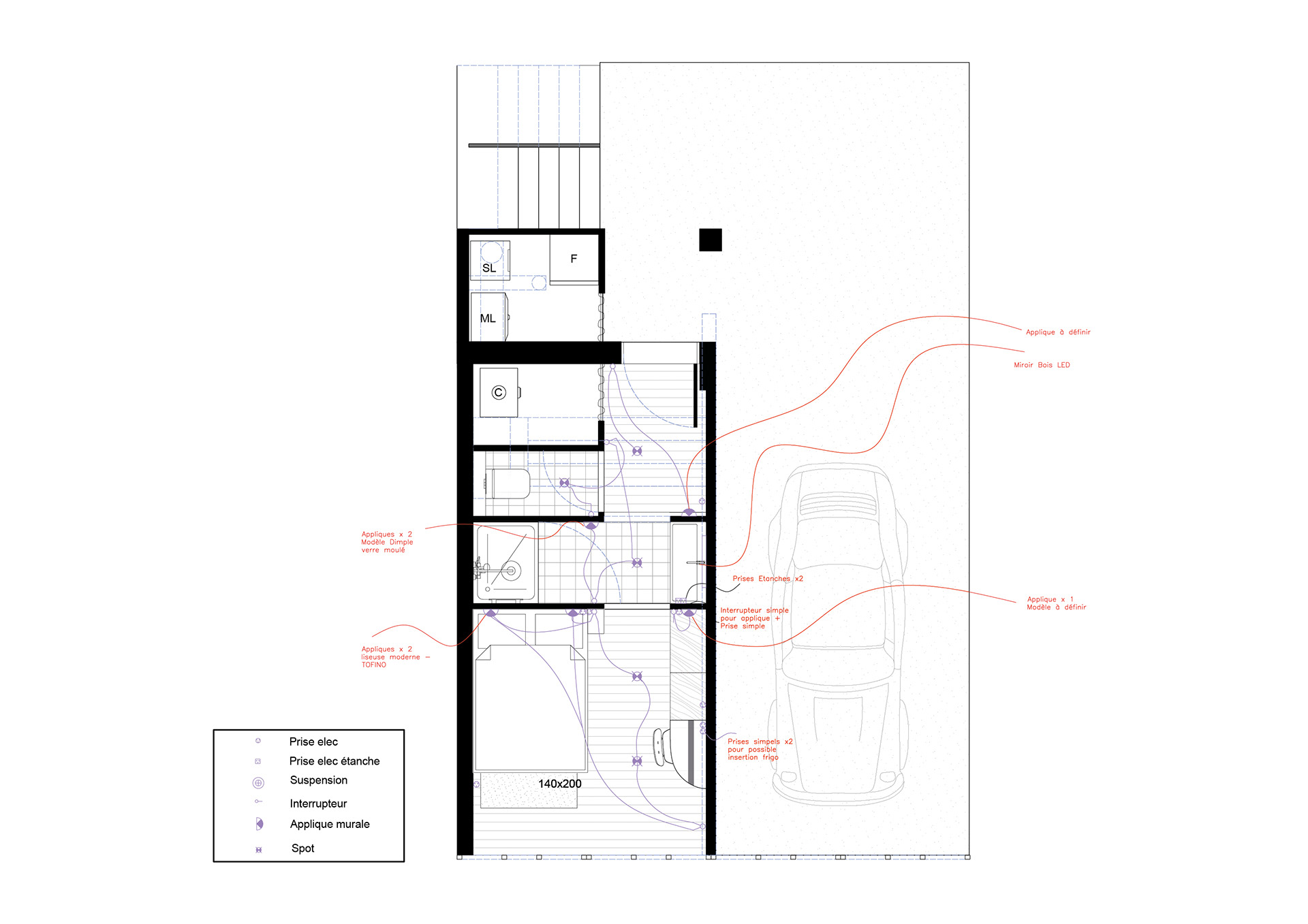
Le projet consiste à la conception et la réalisation complète d'un studio indépendant. Le  sous-sol de cette maison du Cap-Ferret, est divisé en deux. L'espace pensé dans la profondeur, laisse pénétrer la lumière naturelle.
© Visuels 3D du projet en cours, Resinstudio

You may also like

Back to Top