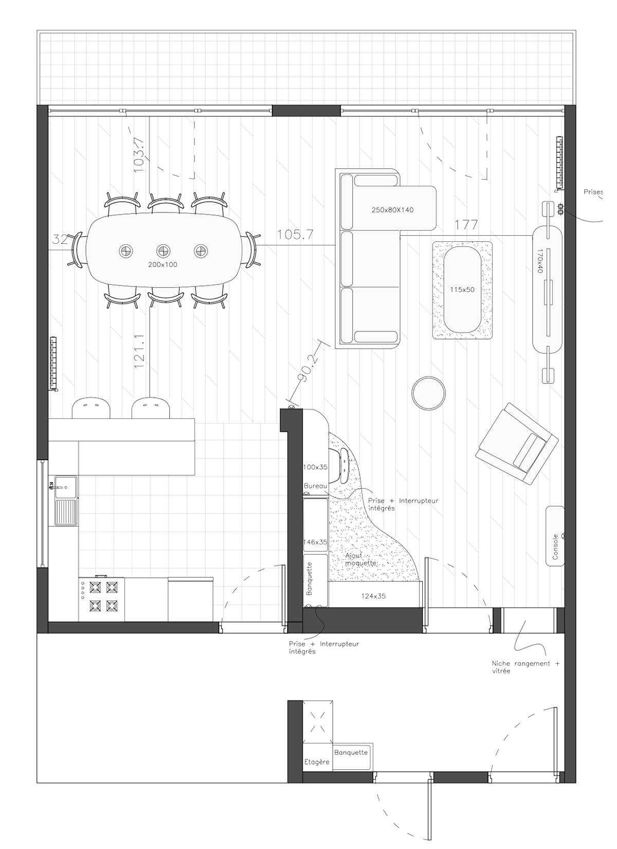
Le projet consiste en la rénovation partielle d'un appartement. L'aménagement, la décoration des pièces et la création de mobilier sur mesure pour afin d'optimiser l'espace. Ici, il est question de dessiner un salon attenant à la cuisine, permettant d'accueillir du monde mais aussi de se retrouver en famille. 
© Visuels 3D du projet en cours, Resinstudio

You may also like

Back to Top